Caan van Necklaan 156

Caan van Necklaan 156

RIJSWIJK

verkocht

Ook uw woning of bedrijfspand succesvol verkopen? Neem dan contactmet ons op

Gratis waardebepaling

Omschrijving

Luxe en duurzaam wonen aan de Caan van Necklaan!

Aan de geliefde Caan van Necklaan vindt u deze volledig hoogwaardig gerenoveerde bovenwoning (2025) die werkelijk instapklaar is. Alles is aangepakt en vernieuwd: Een luxe keuken en badkamer, HR++ glas, moderne elektra en leidingen, én een duurzaam klimaatsysteem met airconditioning in alle kamers waarmee u energiezuinig verwarmt én koelt. Gasloos wonen dus waarbij de authenticiteit bewaard is door middel van stijlvolle paneeldeuren en glas-in-lood. Comfort, duurzaamheid en stijl komen hier perfect samen.

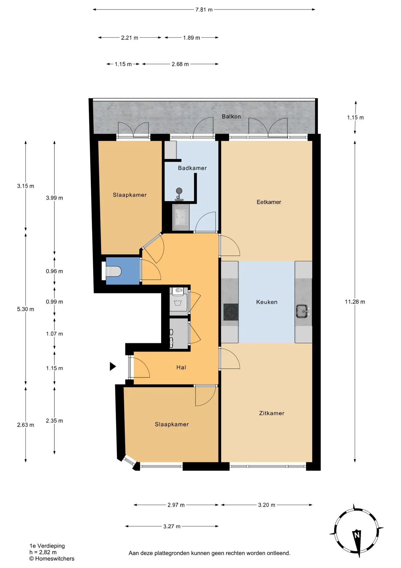
Wanneer u via het portiek naar de eerste verdieping loopt en de woning betreedt, komt u in de lichte hal. Hier vindt u de vernieuwde meterkast, slim ingedeeld met ruimte voor een droger, evenals een aparte kast met de elektrische boiler en de aansluiting voor de wasmachine. Aan de achterzijde van de hal bevindt zich een separaat, luxe uitgevoerd toilet.
Aan de voorzijde ligt de eerste slaapkamer, een sfeervolle kamer met uitzicht over de brede, groene laan. Vanuit de hal bereikt u de heerlijke woon-eetkamer: een royale en lichte ruimte met in het hart de luxe keuken. Deze is uitgevoerd in een warme walnoten kleurstelling en voorzien van moderne inbouwapparatuur, waaronder een koel-vriescombinatie, inductiekookplaat met afzuiging en een vaatwasser. Dankzij de praktische indeling en ruime opbergmogelijkheden kookt en leeft u hier met plezier.
Aan de achterzijde openen dubbele deuren naar een zonnig, breed balkon op het zuiden: een heerlijke plek om van de zon en de rust te genieten. Vanuit de woonkamer bereikt u de tussengelegen luxe badkamer, voorzien van elektrische vloerverwarming, een stijlvol wastafelmeubel en een royale inloopdouche. Ook vanuit de badkamer heeft u toegang tot het balkon.
De tweede slaapkamer ligt eveneens aan de achterzijde en beschikt over een eigen airco en openslaande deuren naar het balkon. Een fijne, rustige kamer die ideaal is als hoofdslaapkamer of werkruimte.

De Caan van Necklaan is een brede, groene laan in Rijswijk met een statige uitstraling en alle voorzieningen binnen handbereik. Op loop- en fietsafstand vindt u gezellige winkels, horeca, scholen en sportfaciliteiten. Het openbaar vervoer (tram en bus) is nabij en ook de uitvalswegen richting Den Haag, Delft en Rotterdam zijn snel bereikbaar. Daarnaast liggen Park den Burgh en het Rijswijkse Bos om de hoek, waardoor u volop kunt genieten van rust en natuur in de directe omgeving.

Bijzonderheden
• Woonoppervlakte ca. 75 m2;
• Volledig gerenoveerd en verduurzaamd in 2025;
• Gasloos wonen met airco in alle kamers (verwarmen én koelen);
• Houten kozijnen met HR++ glas en glas-in-lood voorzetramen;
• Luxe keuken in warme walnoten kleurstelling met alle inbouwapparatuur;
• Moderne badkamer met vloerverwarming en ruime inloopdouche;
• Breed en zonnig balkon op het zuiden (bereikbaar vanuit woonkamer, badkamer en slaapkamer);
• Twee slaapkamers, beide met airco en veel lichtinval;
• Vernieuwde elektra en leidingwerk;
• Bouwjaar 1927;
• Gelegen op eigen grond;
• Actieve VvE bijdrage € 100,- per maand;
• Oplevering in overleg;
• Vanwege het bouwjaar worden de ouderdoms-/ materialenclausule in de koopakte opgenomen;

"Bovenstaande informatie is door ons met de hoogst nodige zorgvuldigheid samengesteld. Door ons wordt echter geen enkele aansprakelijkheid aanvaard voor enige onvolledigheid, onjuistheid of anderszins, dan wel de gevolgen daarvan. Alle opgegeven maten en oppervlakten zijn indicatief. De woning is gemeten met gebruikmaking van de Meetinstructie, die is gebaseerd op de normen zoals vastgelegd in NEN 2580. De Meetinstructie is bedoeld om een meer eenduidige manier van meten toe te passen voor het geven van een indicatie van gebruiksoppervlakte. De Meetinstructie sluit verschillen in meetuitkomsten niet volledig uit, door bijvoorbeeld interpretatieverschillen, afrondingen of beperkingen bij het uitvoeren van de meting. Hoewel wij de woning zorgvuldig hebben opgemeten, wordt noch door ons kantoor, noch door de verkoper enige aansprakelijkheid aanvaard voor afwijkingen in de opgegeven maten. Koper wordt in de gelegenheid gesteld om de opgegeven maten te (laten) controleren”.
Lees meer

Kenmerken

Overdracht

Status
verkocht
Aanvaarding
in overleg

VvE checklist

Inschrijving KVK
Ja
Jaarlijkse vergadering
Ja
Periodieke bijdrage
Ja (100,00 per maand)
Reservefonds aanwezig
Ja
Onderhoudsplan
Ja
Opstalverzekering
Ja

Bouw

Soort woning
appartement
Soort appartement
bovenwoning
Aantal woonlagen
1
Woonlaag
1
Bouwjaar
1927
Open portiek
nee
Onderhoud binnen
uitstekend
Onderhoud buiten
goed
Voorzieningen
tv kabel
Isolatie
hr glas

Energie

Energielabel
B
Verwarming
hete lucht verwarming
Warm water
elektrische boiler eigendom

Oppervlakten en inhoud

Woonoppervlakte
75 m²
Buitenruimte oppervlakte
9 m²

Indeling

Aantal kamers
4

Buitenruimte

Ligging
aan rustige weg, in woonwijk

Bergruimte

Garage
geen garage
Parkeergelegenheid
openbaar parkeren, parkeervergunningen

Foto's

Plattegronden

Locatie

Downloads

Vraag een bezichtiging aan of neem contact met ons op.

Naam *
E-mailadres *
Telefoonnummer *
Voer hier uw bericht in *