Kerklaan 122

Kerklaan 122

RIJSWIJK

verkocht

Ook uw woning of bedrijfspand succesvol verkopen? Neem dan contactmet ons op

Gratis waardebepaling

Omschrijving

Welkom in deze adembenemende parterre woning aan de sfeervolle Kerklaan 122. In 2025 volledig en luxe gerenoveerd, is dit een unieke kans voor wie op zoek is naar een instapklaar thuis in het geliefde Oud Rijswijk. Hier komen stijl, comfort en duurzaamheid samen op een toplocatie met alle voorzieningen op loopafstand.

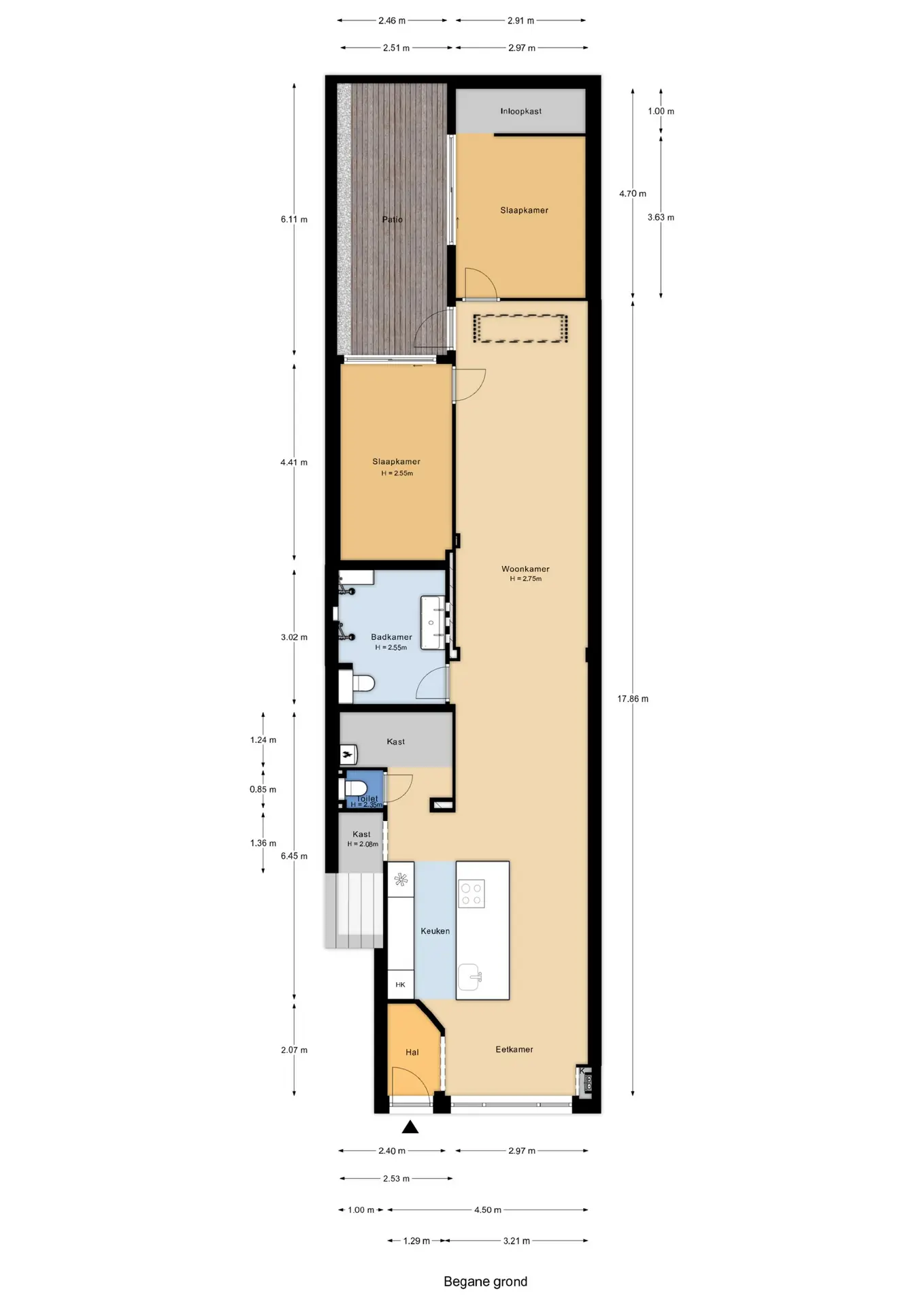
Indeling:

Via de karakteristieke hoekentree stap je binnen in een ruime hal met garderoberuimte. Direct voel je de luxe door de hoogwaardige afwerking, met als eyecatcher de visgraat PVC-vloer met subtiele gouden bies, die overal is doorgelegd.

Aan de voorzijde bevindt zich de royale woonkeuken met een exclusieve uitstraling: fronten van walnoothout, een marmerlook werkblad en een centraal kook-/spoeleiland. De keuken is van alle gemakken voorzien:

* Siemens apparatuur, waaronder een inductiekookplaat met geïntegreerde afzuiging
* Twee ovens (waarvan één combi)
* Vaatwasser
* Koelkast en vriezer
* Messing keukenkraan en een naadloos geïntegreerde wasbak in het blad

Aangrenzend een praktische hoek met berging en de opstelplaats voor de CV ketel (Intergas). Separaat een stijlvol toilet uitgevoerd in beton ciré. De woning is daarnaast uitgerust met mechanische ventilatie en airco voor optimaal wooncomfort.

De diepe woonkamer strekt zich uit tot achterin de woning en is voorzien van veel inbouwspots, elektrische aansluitpunten én een lichtstraat die zorgt voor extra daglicht. Vanuit hier is de luxe badkamer bereikbaar:

- Volledig uitgevoerd in beton ciré
- Tweede toilet
= Royale dubbele inloopdouche
- Dubbel wastafelmeubel

Aan de achterzijde bevinden zich twee ruime slaapkamers:
De hoofdslaapkamer met schuifpui naar de patio tuin, voorzien van sfeervolle vlonder en verlichting op zonne-energie
Een tweede slaapkamer, eveneens met schuifpui en een praktische nis voor kasten

Comfort & duurzaamheid
Deze woning is volledig toekomstbestendig en energiezuinig:

- Vloerverwarming in de gehele woning
- Airconditioning
- Volledige isolatie: vloer-, spouwmuur- en HR++ beglazing

Samengevat:
Kerklaan 122 is een uniek, turn-key appartement op een toplocatie in Oud Rijswijk. De combinatie van luxe materialen, moderne installaties en sfeervolle details maakt dit een droomwoning voor wie kwaliteit waardeert. Verder is de woning gelegen in het oude centrum van Rijswijk met een diversiteit aan winkels en gezellige horeca, in de directe nabijheid van de scholen, sportclubs, openbaar vervoer en diverse uitvalswegen. Natuurgebieden zoals het Rijswijkse Bos en Park den Burgh zijn op fietsafstand.

Aanvullende informatie:
- Woonoppervlak ca. 104 m2;
- Volledig gerenoveerd en geisoleerd in 2025;
- Gemakkelijk parkeren op straat met parkeervergunning;
- Tuindeuren voorzien van zonnescherm;
- Energielabel in aanvraag;
- Actieve VVE, bijdrage ca. € 107,- per maand;
- Gelegen op eigen grond;
- Voor de maatvoering en indeling wordt verwezen naar de plattegronden;
- In de koopovereenkomst wordt de niet-zelf-bewoond clausule opgenomen;
- Oplevering in overleg;

"Bovenstaande informatie is door ons met de hoogst nodige zorgvuldigheid samengesteld. Door ons wordt echter geen enkele aansprakelijkheid aanvaard voor enige onvolledigheid, onjuistheid of anderszins, dan wel de gevolgen daarvan. Alle opgegeven maten en oppervlakten zijn indicatief. De woning is gemeten met gebruikmaking van de Meetinstructie, die is gebaseerd op de normen zoals vastgelegd in NEN 2580. De Meetinstructie is bedoeld om een meer eenduidige manier van meten toe te passen voor het geven van een indicatie van gebruiksoppervlakte. De Meetinstructie sluit verschillen in meetuitkomsten niet volledig uit, door bijvoorbeeld interpretatieverschillen, afrondingen of beperkingen bij het uitvoeren van de meting. Hoewel wij de woning zorgvuldig hebben opgemeten, wordt noch door ons kantoor, noch door de verkoper enige aansprakelijkheid aanvaard voor afwijkingen in de opgegeven maten. Koper wordt in de gelegenheid gesteld om de opgegeven maten te (laten) controleren”.
Lees meer

Kenmerken

Overdracht

Status
verkocht
Aanvaarding
in overleg

VvE checklist

Inschrijving KVK
Ja
Jaarlijkse vergadering
Ja
Periodieke bijdrage
Ja (107,00 per maand)
Reservefonds aanwezig
Nee
Onderhoudsplan
Ja
Opstalverzekering
Nee

Bouw

Soort woning
appartement
Soort appartement
benedenwoning
Aantal woonlagen
1
Woonlaag
1
Bouwjaar
1918
Open portiek
nee
Onderhoud binnen
uitstekend
Onderhoud buiten
goed
Voorzieningen
mechanische ventilatie, tv kabel, airconditioning, schuifpui
Isolatie
volledig geisoleerd

Energie

Energielabel
A++
Verwarming
cv ketel
Warm water
cv ketel

Oppervlakten en inhoud

Woonoppervlakte
104 m²

Indeling

Aantal kamers
4

Buitenruimte

Ligging
aan rustige weg, in centrum, in woonwijk
Tuin
patio atrium met een oppervlakte van 15 m² en is gelegen op het zuidwesten

Bergruimte

Garage
geen garage
Parkeergelegenheid
openbaar parkeren, parkeervergunningen

Foto's

Plattegronden

Locatie

Downloads

Vraag een bezichtiging aan of neem contact met ons op.

Naam *
E-mailadres *
Telefoonnummer *
Voer hier uw bericht in *