Sfeervolle, instapklare eengezinswoning met heerlijke tuin op het zuidoosten
Welkom aan de Nicolaas Beetslaan 30 – een verzorgde en ruime eengezinswoning die direct een gevoel van thuis oproept. Deze woning combineert een lichte, moderne afwerking met een praktische indeling en een fijne ligging in een rustige, kindvriendelijke woonomgeving.
Via de voortuin bereik je de entree van de woning. De ruime hal biedt toegang tot de meterkast (7 groepen), een berging onder de trapkast en een modern toilet met fontein.
Aan de voorzijde bevindt zich de sfeervolle woonkamer, voorzien van een laminaatvloer, strak gestuukte wanden, een open haard en een groot raampartij dat zorgt voor veel lichtinval. De achtergelegen eetkamer bevindt zich in de uitbouw, met een fraaie dakkoepel die de ruimte een open en lichte sfeer geeft. Via de openslaande deuren stap je direct de tuin in.
De semi-open keuken is modern en compleet uitgerust met een 5-pits gasfornuis met afzuiging, oven, vaatwasser, koel-/vriescombinatie, magnetron en een opstelplaats voor de cv-ketel (Remeha, 2022).
De heerlijke achtertuin is gelegen op het zuidoosten en biedt volop zon. De tuin is verzorgd aangelegd, voorzien van een stenen berging en is tevens bereikbaar via een handige achterom.
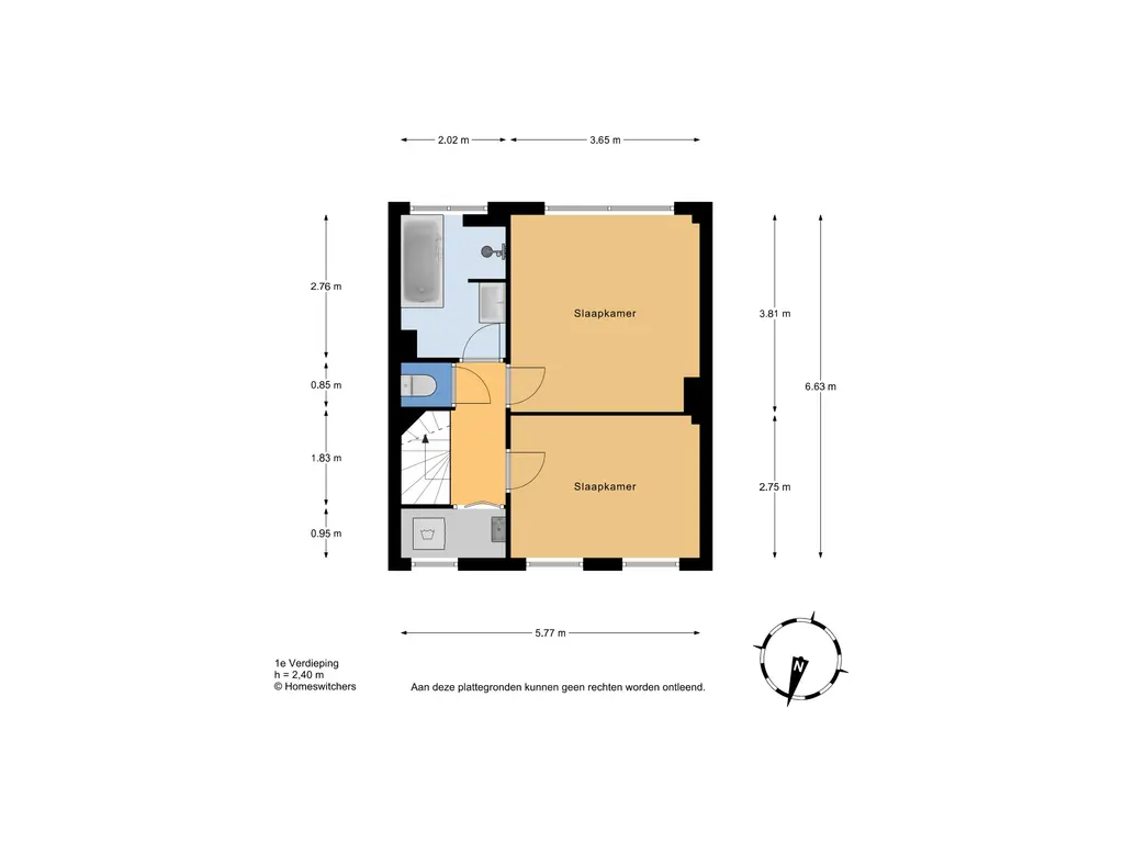
Op de eerste verdieping bevinden zich een overloop, separaat toilet met fontein, een wasruimte met opstelplaats voor de wasmachine en droger, een ruime hoofdslaapkamer aan de achterzijde en een tweede slaapkamer aan de voorzijde. De badkamer is neutraal uitgevoerd en beschikt over een douche, badmeubel, wastafelmeubel en designradiator.
De tweede verdieping is bereikbaar via een vaste trap. Hier vind je een overloop met bergruimte achter de knieschotten en twee slaapkamers, beide voorzien van een dakkapel en laminaatvloer.
Ligging en omgeving
Deze prachtige woning is gunstig gelegen ten opzichte van uitvalswegen (A12, A13 en A4). Daarnaast bevinden het NS-station Voorburg en station Laan van Nieuw Oost-Indië zich op loopafstand, evenals diverse bus-, tram- (lijn 2) en RandstadRail-verbindingen. Dit zorgt voor een uitstekende bereikbaarheid.
Aanvullende informatie:
Woonoppervlak ca. 121 m²;
Bouwjaar 1952;
Energielabel D;
HR CV-ketel Intergas, bouwjaar 2022;
Voorzien dubbel glas in houtenn en kunststof raamkozijnen; 
Voor de maatvoering en indeling wordt verwezen naar de plattegronden;
Woning is gelegen op eigen grond;
Oplevering in overleg.
Ook voorzieningen liggen binnen handbereik: winkelcentra zoals “De Julianabaan”, de sfeervolle Herenstraat en de vernieuwde “Mall of the Netherlands” zijn dichtbij gelegen. Het strand is eenvoudig per fiets te bereiken en natuurgebieden liggen op korte afstand. Overige voorzieningen zoals sport, cultuur, onderwijs, horeca, detailhandel en diverse speelpleinen met speeltoestellen zijn in deze kindvriendelijke omgeving ruim aanwezig.
Welcome to Nicolaas Beetslaan 30 – a well-maintained and spacious family home that instantly feels welcoming. This property combines a bright, modern finish with a practical layout and an ideal location in a quiet, child-friendly neighborhood.
Through the front garden, you enter the home. The spacious hallway provides access to the meter cupboard (7 groups), storage space under the stairs, and a modern toilet with a wash basin.
At the front, you’ll find the cozy living room, featuring a laminate floor, smooth plastered walls, an open fireplace, and a large window that lets in plenty of natural light. The adjoining dining area is located in the rear extension, complete with a beautiful skylight that creates an open and airy atmosphere. Through the French doors, you can step directly into the garden.
The semi-open kitchen is modern and fully equipped with a 5-burner gas stove with extractor hood, oven, dishwasher, fridge-freezer combination, microwave, and the central heating boiler (Remeha, 2022).
The delightful southeast-facing garden offers plenty of sunshine. It is neatly landscaped, includes a brick storage shed, and is accessible via a convenient back entrance.
On the first floor, there is a landing, a separate toilet with wash basin, a laundry room with space for a washing machine and dryer, a spacious main bedroom at the rear, and a second bedroom at the front. The bathroom is neutrally finished and features a shower, vanity unit, wash basin, and designer radiator.
The second floor is accessible via a fixed staircase. Here you will find a landing with storage space behind the knee walls and two bedrooms, both with dormer windows and laminate flooring.
Location and Surroundings
This beautiful home is conveniently located near major highways (A12, A13, and A4). Voorburg railway station and Laan van Nieuw Oost-Indië station are within walking distance, as well as several bus, tram (line 2), and RandstadRail connections — offering excellent accessibility.
Additional Information:
Living area approx. 121 m²
Built in 1952
Energy label D
High-efficiency Intergas central heating boiler, installed in 2022
Double glazing in wooden and plastic window frames
For exact measurements and layout, please refer to the floor plans
Property located on freehold land
Delivery in consultation
All amenities are within easy reach: shopping centers such as “De Julianabaan,” the charming “Herenstraat,” and the newly renovated “Mall of the Netherlands” are nearby. The beach is easily accessible by bike, and several nature areas are close at hand. Other facilities — including sports, culture, education, dining, retail, and multiple playgrounds — are plentiful in this family-friendly neighborhood.
"Bovenstaande  informatie is door ons met de hoogst nodige zorgvuldigheid samengesteld. Door ons wordt echter geen enkele aansprakelijkheid aanvaard voor enige onvolledigheid, onjuistheid of anderszins, dan wel de gevolgen daarvan. Alle opgegeven maten en oppervlakten zijn indicatief. De woning is gemeten met gebruikmaking van de Meetinstructie, die is gebaseerd op de normen zoals vastgelegd in NEN 2580. De Meetinstructie is bedoeld om een meer eenduidige manier van meten toe te passen voor het geven van een indicatie van gebruiksoppervlakte. De Meetinstructie sluit verschillen in meetuitkomsten niet volledig uit, door bijvoorbeeld interpretatieverschillen, afrondingen of beperkingen bij het uitvoeren van de meting. Hoewel wij de woning zorgvuldig hebben opgemeten, wordt noch door ons kantoor, noch door de verkoper enige aansprakelijkheid aanvaard voor afwijkingen in de opgegeven maten. Koper wordt in de gelegenheid gesteld om de opgegeven maten te (laten) controleren”.
                        
                         
                                         
                                         
                                         
                                         
                                         
                                         
                                         
                                         
                                         
                                         
                                         
                                         
                                         
                                         
                                         
                                         
                                         
                                         
                                         
                                         
                                         
                                         
                                         
                                         
                                         
                                         
                                         
                                         
                                         
                                         
                                         
                                         
                                         
                                         
                                         
                                         
                                         
                                         
                                         
                                             
                                             
                                             
                                             
                                             
                                             
                                             
                                             
                                             
                                             
                                             
                                             
                                             
                                             
                                             
                                             
                                             
                                             
                                             
                                             
                                             
                                             
                                             
                                             
                                             
                                             
                                             
                                             
                                             
                                             
                                             
                                             
                                             
                                             
                                             
                                             
                                             
                                             
                                             
                                     
                                     
                                    