Schitterend ruim 4-kamerappartement met zonnig breed balkon op de derde etage
Dit prachtig en grotendeels gerenoveerde 4-kamerappartement combineert ruimte, comfort en een moderne afwerking op een ideale locatie. Het appartement bevindt zich op de derde verdieping van een goed onderhouden complex en beschikt over drie slaapkamers, een zonnig balkon over de volle breedte én een eigen berging op de vijfde verdieping.
Indeling van het complex
Via de gesloten hoofdentree met brievenbussen en bellentableau betreedt u de centrale hal met toegang tot de lift, het trappenhuis, de algemene fietsenbergingen en de bergingen op de bovenste verdieping.
Het appartement
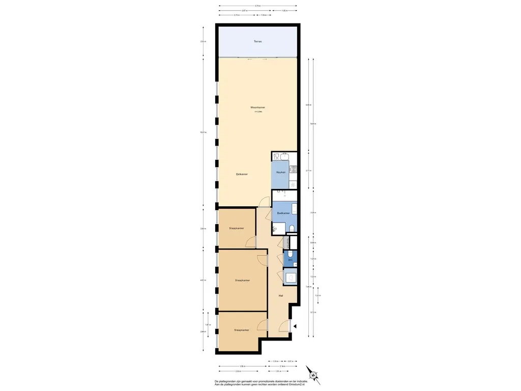
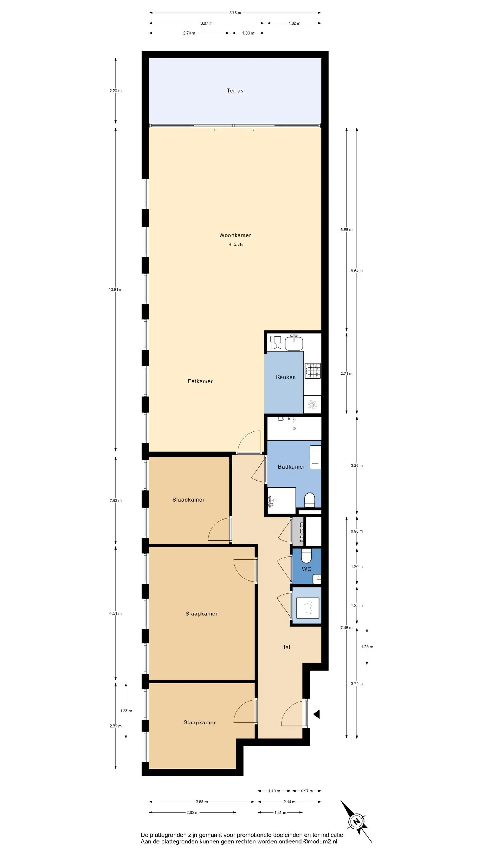
Bij binnenkomst in de ruime en lichte hal vindt u de meterkast, het toilet en een praktische interne berging met mechanische ventilatie en aansluitingen voor wasmachine en droger.
De royale woon- en eetkamer vormt het hart van de woning. De fraaie laminaatvloer met hoge plinten en strak gestuukte wanden zorgen voor een moderne uitstraling. Dankzij de grote raampartijen is de woonkamer bijzonder licht en biedt deze een prettige sfeer om te ontspannen of gasten te ontvangen. Vanuit de woonkamer stapt u direct het brede, zonnige balkon op – de perfecte plek om te genieten van de buitenlucht en het vrije uitzicht.
De moderne open keuken is uitgevoerd in een stijlvolle, neutrale L-opstelling met een composiet werkblad en witte matte kasten. De keuken is voorzien van hoogwaardige inbouwapparatuur, waaronder een inductiekookplaat, combi magnetron/oven, afzuigkap, koelkast, vriezer en vaatwasser – ideaal voor de kookliefhebber.
Slaapkamers en badkamer
Het appartement beschikt over drie comfortabele slaapkamers. De ruime hoofdslaapkamer heeft een brede raampartij die zorgt voor veel natuurlijk licht en een prachtig uitzicht over de skyline van Den Haag. De overige twee kamers zijn uitstekend geschikt als kinderkamer, werkkamer of logeerruimte.
De moderne badkamer is keurig afgewerkt in neutrale tinten en voorzien van een ligbad met handdouche, een aparte douchehoek, een wastafelmeubel, designradiator en een 2e vrij hangend toilet.
Berging en fietsenstalling
Tot het appartement behoort een eigen berging op de vijfde verdieping en er is een gezamenlijke fietsenberging op de begane grond.
Locatie en voorzieningen
Dit royale appartement heeft alle benodigde voorzieningen in de directe omgeving, waaronder winkelcentrum Ypenburg met twee supermarkten, diverse winkels en restaurants. Daarnaast liggen het natuurgebied Delftse Hout en het waterrijke recreatiegebied De Dobbeplas op korte afstand – ideaal voor liefhebbers van wandelen, fietsen en ontspanning in de natuur. Ook zijn er meerdere (basis)scholen in de buurt, uitstekende openbaarvervoersverbindingen (met een directe tramverbinding naar het centrum van Den Haag en Delft) en snelle aansluitingen op de A4, A12 en A13.
Aanvullend informatie;
Bouwjaar 2001;
Gelegen op eigen grond;
Volledig geïsoleerd;
Energielabel A;
Actieve VvE met een maandelijkse bijdrage van € 221,- 
3 slaapkamers;
Keuken met diverse inbouwapparatuur (bj. 2025);
Zonnig terras met een uitzicht over de wijk;
Algemene fietsenberging en een separate berging op de 5e etage;
Voor de maten verwijzen wij u naar de plattegronden;
Aanvaarding in overleg. 
Kortom: een schitterend, instapklaar appartement met veel ruimte, licht en comfort – klaar voor nieuwe bewoners die op zoek zijn naar een moderne woning met alles binnen handbereik.
Interesse in dit huis? Schakel direct uw eigen NVM-aankoopmakelaar in. Uw NVM-aankoopmakelaar komt op voor uw belang en bespaart u veel tijd, geld en zorgen.
Bovenstaande informatie is door ons met de hoogst nodige zorgvuldigheid samengesteld. Door ons wordt echter geen enkele aansprakelijkheid aanvaard voor enige onvolledigheid, onjuistheid of anderszins, dan wel de gevolgen daarvan. Alle opgegeven maten en oppervlakten zijn indicatief. De woning is gemeten met gebruikmaking van de Meetinstructie, die is gebaseerd op de normen zoals vastgelegd in NEN 2580. De Meetinstructie is bedoeld om een meer eenduidige manier van meten toe te passen voor het geven van een indicatie van gebruiksoppervlakte. De Meetinstructie sluit verschillen in meetuitkomsten niet volledig uit, door bijvoorbeeld interpretatieverschillen, afrondingen of beperkingen bij het uitvoeren van de meting. Hoewel wij de woning zorgvuldig hebben opgemeten, wordt noch door ons kantoor, noch door de verkoper enige aansprakelijkheid aanvaard voor afwijkingen in de opgegeven maten. Koper wordt in de gelegenheid gesteld om de opgegeven maten te (laten) controleren.
                        
                         
                                         
                                         
                                         
                                         
                                         
                                         
                                         
                                         
                                         
                                         
                                         
                                         
                                         
                                         
                                         
                                         
                                         
                                         
                                         
                                         
                                         
                                         
                                         
                                         
                                         
                                         
                                         
                                         
                                         
                                             
                                             
                                             
                                             
                                             
                                             
                                             
                                             
                                             
                                             
                                             
                                             
                                             
                                             
                                             
                                             
                                             
                                             
                                             
                                             
                                             
                                             
                                             
                                             
                                             
                                             
                                             
                                             
                                             
                                     
                                     
                                    